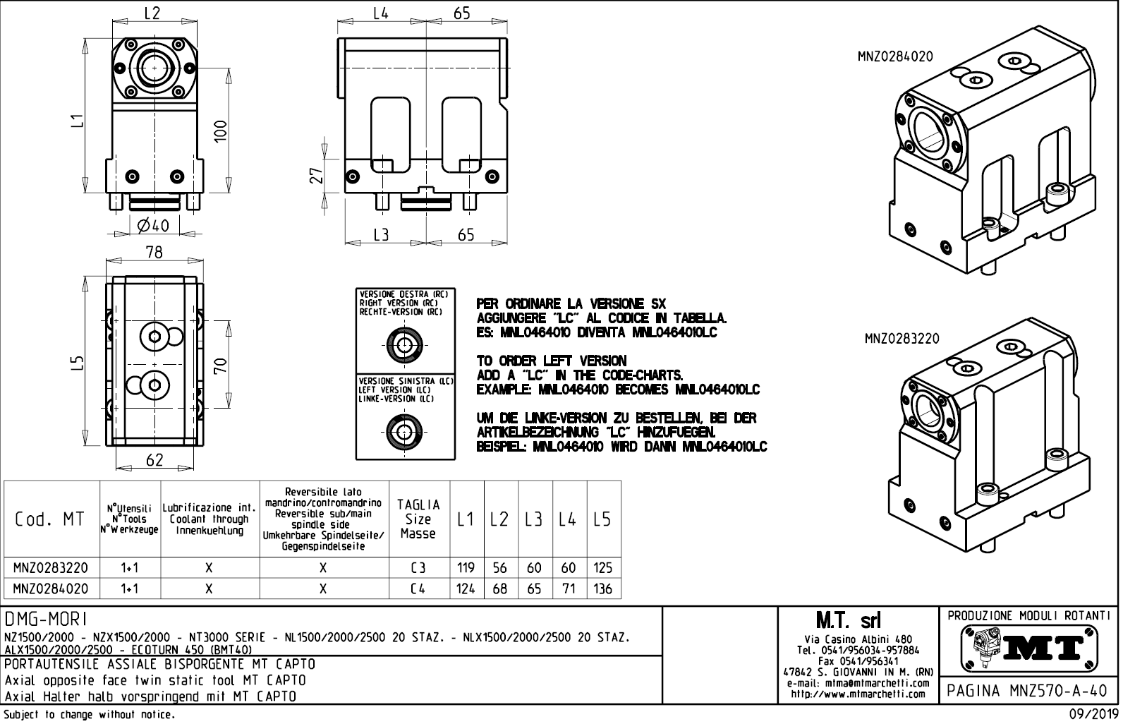
Axiální pevný držák nástrojů pro vnější soustružení:
- vnitřní (max.70bar) a venkovní přívod řezné kapaliny.
- pro upnutí vnějších nožů Capto.
Určeno pro stroje:
- série NL / NLX s 20-ti polohovou hlavou
- série NT 3000
- série NZ 1500 / 2000
- série NZX 1500 / 2000
- série ALX 1500 / 2000 / 2500
- série ECOTURN 450

Pro stažení souboru se prosím přihlašte. Pokud nemáte účet tak se nejprve registrujte.